
ABOUT ME
Sharon Knowles is a Computer Assisted Drafting (CAD) Technologist with over 25 years of experience.
I design professional 2D site plans, floor plans and elevations. Whatever your project: commercial or residential architectural new-builds or renovations. I can provide drawings for building permit, construction or engineering. Custom designs for a garage, carport, cottage, chalet, a B&B or a backyard getaway. I can bring your architectural ideas to life with professional plans from permit to construction.
Architectural New-Build and Renovation
Plans drafted for:
Kitchen & Basement Remodeling, Custom Homes, Decks, Floor Plans, Elevations, Home Additions & Remodeling, Landscape Plans, Commercial Construction, Site Preparation, Space Planning, Sustainable & Universal Design. I can meet with you to discuss your ideas. Perhaps you have an idea for a Patent.
Did you know planning your project in advance will help save you time and money? Lay out all your choice details, whether you are presenting drawings to an engineer, a contractor or truss manufacturer, will lead to seamless construction.
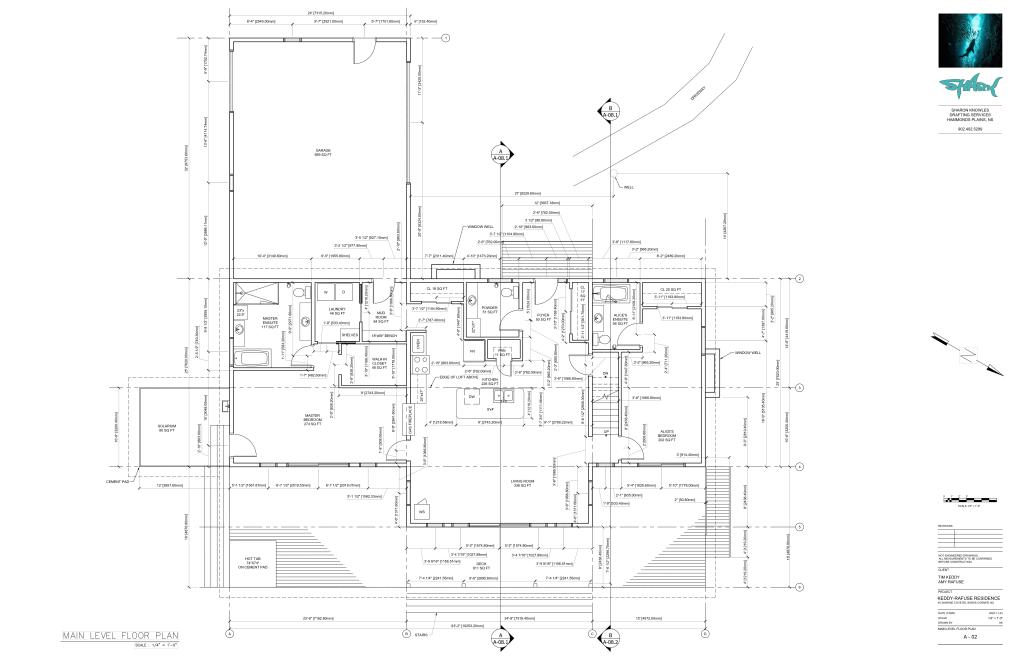
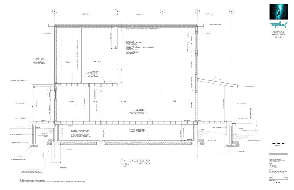
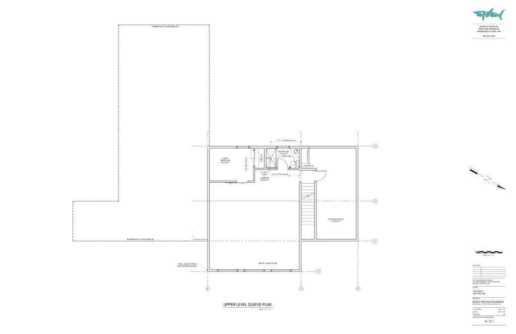
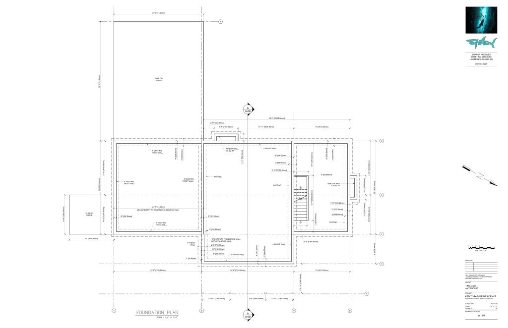
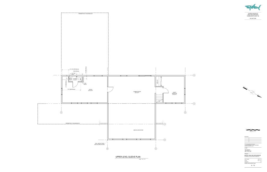
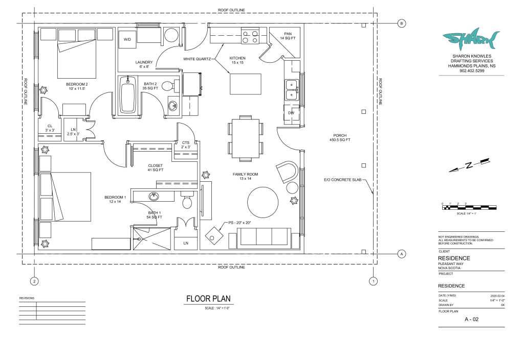
The following Keddy/Rafuse new-build illustrates the option of a gable roof and a shed roof, with modified second level for the client to choose from:
Keddy/Rafuse Gable Roof Design:
























Keddy/Rafuse Shed Roof Design:
















Cabin on the Lake:








Carport Options:


Sharon can measure your Home or Office and Create Plans for Renovations
Residential/Commercial New-Build Plans
A Professional Drawing for a Patent
Put Your Ideas on Paper
Make Your Dream Plans a Reality

Email: SharKnowles@hotmail.com
To make an appointment, call or email for a site visit.
New Builds 60 cents/square foot. Electrical & Plumbing Sleeve Drawings, Renovations or extensive design changes $57.00/hour.
Site visit flat rate: $30.00 plus hourly rate.
Pricing subject to change without notice.
Contact: 902-402-5299
Privacy: Drawings samples provided upon request.
Terms & Conditions: 50% Deposit to begin jobs.